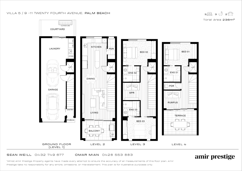
Ocean Seven Palm Beach – From CAD to Stunning Marketing Floor Plans
September 8, 2025 - 2 minutes readWe recently partnered with Amir Property to create marketing-ready floor plans for their latest townhouse development, Ocean Seven at 9–11 Twenty Fourth Avenue, Palm Beach.
The project began with CAD architectural drawings. While these are ideal for construction, they are often too technical for sales and marketing. Our task was to convert the CAD files into clear, visually engaging marketing plans that buyers can easily understand.

From Technical to Buyer-Friendly
Our design team focused on turning raw data into sleek visuals that highlight Ocean Seven’s modern coastal lifestyle. The process included:
- Simplifying details: Making layouts clear and easy to follow.
- Design refinement: Adding polished finishes to reflect Ocean Seven’s premium look.
- Buyer focus: Presenting spaces in a way that helps potential owners picture themselves living there.


Why Marketing Floor Plans Matter
For a development like Ocean Seven, location and design are everything. Marketing floor plans play a key role in showing buyers not just the structure of a home, but the lifestyle it offers. By bridging technical precision with visual appeal, these plans helped Amir Property market their townhouses more effectively.
The Finished Plans
The result was a set of stylish, accurate, and buyer-focused floor plans that supported Amir Property’s sales and marketing strategy. The plans showcase Ocean Seven’s spacious layouts while maintaining the clean, professional style needed for a premium Palm Beach development.
Do you need marketing-ready floor plans for your next project? Get in touch today and let us turn your CAD drawings into visuals that sell.